Birdsmouth Construction
  • Birdsmouth Construction
  • Portfolio
  • Design Build
  • High Performance Building
  • Retrofits
  • Who We Are — +
    • About Us
    • Testimonials
    • Contact Us
  • News

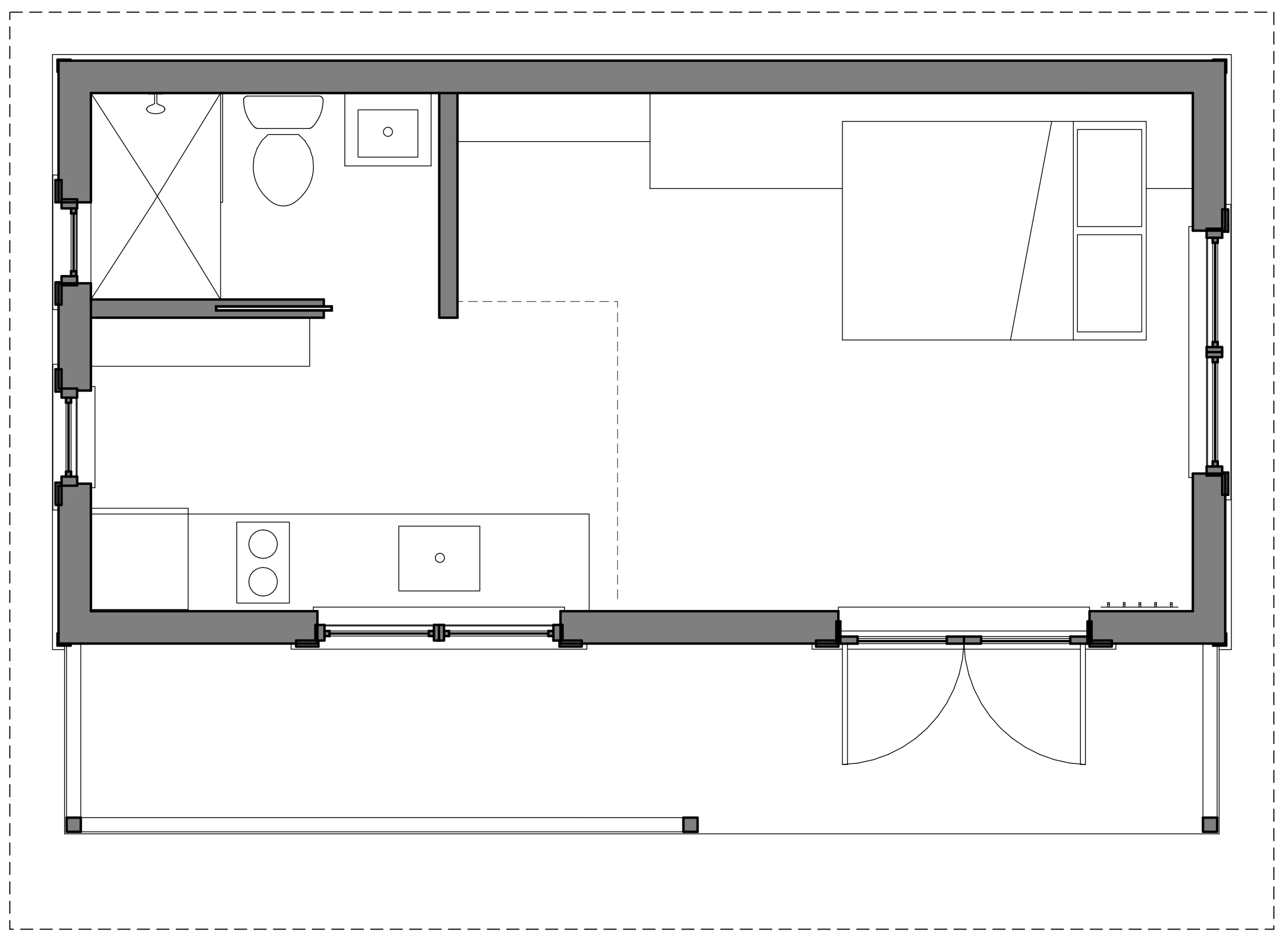
Irvington ADU

Back to Portfolio
Project Details
Share

Similar Projects

Zero Energy ADU
Hawthorne ADU
Irvington ADU
Tillamook ADU
Alberta ADU
Arbor Lodge ADU
View All
Birdsmouth Design-Build
Contact Us

3525 SE 17th Ave, Portland, OR 97202

(503) 753-9692

info@birdsmouthpdx.com

OR CCB# 184665
WA CCB# BIRDSD*761C9

© Copyright 2026 Birdsmouth